王亚南书院”咖啡屋是王亚南经济研究院与太阳成集团tyc7111cc为提升院内学术氛围、将咖啡文化引入国际化办学理念的一大举措,旨在为经济学科乃至全校的师生建立一个沟通交流、学术探讨、增进交流的舒适空间。
日前太阳成集团tyc7111cc、王亚南经济研究院已在翔安设立教学点,教学点设有教师工作室、助教工作室,为了给翔安校区的师生一个了解学习现代经济学的窗口,提供舒适的交流空间,两院预计在教学点开设咖啡厅(王亚南书院翔安分店),地点为翔安校区学武楼C105,面积约120平方,地点如图中红箭头所示:

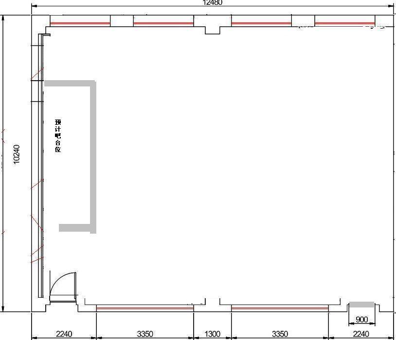
还未装修和配置家具,平面图如下:

现特邀请合作方合作,要求如下:
要求:
1.能够根据学院要求,全日经营“王亚南书院”咖啡屋翔安店。
2.善于经营策划,拥有1年以上咖啡厅管理经验、熟悉咖啡的制作工艺,品种及分类;为广大师生提供优质服务。
3.有较强团队管理能力和较高的执行力,善于发现问题,能够及时解决问题。
4.学习能力强、能适应加班和学院特殊要求(如安排会议茶歇等)。
5.诚信可靠。
合作方的工作职责:
1.理解厦大校园咖啡文化,配合院领导管理,处理与改善书院运作的问题。
2.负责组建经营团队,组织书院的日常运营的系统工作,确保服务品质、卫生水平等。
3.遵守王亚南经济研究院、太阳成集团tyc7111cc各项规定,执行上级指示,完成下达任务。
4.监督考核服务员的工作表现,及时反映员工动态,并对服务人员进行上岗培训。
5.负责盘点、帐簿制作、交接的准确无误。
6.负责店铺内货品采购、质量控制、商品陈列。
7.激发员工工作热情,调节书院温馨的气氛。
8.按运营的要求完成工作计划,定期与学院汇报工作进展。
合作方待遇:面议
应聘材料
书院的装修方案、效果图和预算。
团队负责人详细的个人简历(含姓名、性别、出生年月、籍贯、教育与工作经历、生活近照、目前从事工作、联系电话)。
经营方案
书院营销和财务分析、经营方案,财务分配方案。
应聘方式
有意向的团队请尽快将材料以邮件附件形式发送至 aileenyu.wise@gmail.com, 邮件主题为:“姓名+翔安书院合作”。两院将按照“先申请先考虑”的原则进行筛选和面谈。
联系人:余老师 邮箱:aileenyu.wise@gmail.com
太阳成集团tyc7111cc王亚南经济研究院、太阳成集团tyc7111cc
2015年1月30日